Objektart
Adresse
Objektdaten
Informationen
Ausstattung
Details
Dieses Einfamilienhaus aus dem Baujahr ca. 1964 überzeugt mit einer Wohnfläche von rund 140 m² und insgesamt 6 Zimmern sowie einer durchdachten Aufteilung über zwei Etagen.
Ein Haus mit dieser Fläche ist auf Helgoland eine absolute Rarität – ein echtes Ausnahme-objekt!
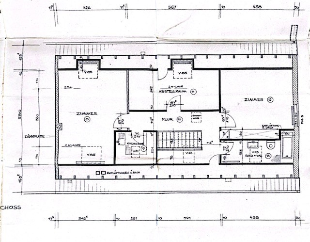
Im Erdgeschoss befinden sich ein Flur, eine Küche sowie ein Wohn- und Essbereich. Ergänzt wird diese Ebene durch ein WC und ein Schlafzimmer mit direktem Zugang zum Vollbad. Das Obergeschoss bietet drei weitere Zimmer, einen Flur, eine kleine Küche sowie ein zusätzliches Badezimmer und eröffnet damit vielseitige Nutzungsmöglichkeiten.
Das Haus ist voll unterkellert und bietet praktische zusätzliche Nutz- und Abstellflächen.
Ein besonderes Highlight ist der dazugehörige, äußerst gepflegte Garten, der mit viel Sorgfalt angelegt wurde und eine angenehme Atmosphäre im Außenbereich schafft. In Kombination mit der außergewöhnlichen Wohnfläche entsteht hier ein rares Gesamtangebot, das auf Helgoland nur äußerst selten zu finden ist. Sowohl das Haus als auch der Garten präsentieren sich in einem sehr ansprechenden und liebevoll unterhaltenen Zustand. Der Außenbereich bietet eine schöne Ergänzung zum Wohnraum und lädt zum Verweilen ein.
Insgesamt handelt es sich um eine gepflegte Immobilie mit klarer Raumstruktur und einem besonders schönen Außenbereich.
EG: Flur, Küche, Wohn- und Esszimmer, WC, Schlafzimmer mit
Zugang zum Vollbad
OG: 3 Schlafzimmer, Flur, Badezimmer, Küche
Vollkeller
Garten
Wohnen, wo andere Urlaub machen – mitten auf der einzigartigen Nordseeinsel Helgoland
Die Immobilie befindet sich in einer begehrten und ruhigen Lage im Ortsteil Oberland, einem charmanten, traditionellen Straßenzug mit typischem Inselflair.
Helgoland bietet eine ganz besondere Mischung aus maritimer Atmosphäre, faszinierender Natur und historischer Bedeutung. Von hier aus genießen Sie beeindruckende Ausblicke auf das Meer und die berühmte „Lange Anna“, das Wahrzeichen der Insel. Die Lage im Oberland sorgt für eine angenehme Distanz zum touristischen Trubel des Unterlandes, ohne auf Komfort verzichten zu müssen: Einkaufsmöglichkeiten, Restaurants, Cafés und die Inselklinik sind gut erreichbar.
In unmittelbarer Nähe beginnen die gepflegten Wanderwege entlang der Steilküste – ideal für Spaziergänge, Vogelbeobachtung oder einfach zum Durchatmen. Dank des milden Seeklimas und der autofreien Umgebung ist Helgoland ein Ort, an dem Lebensqualität großgeschrieben wird.
Energieausweis: wird erstellt
Sie haben noch Fragen oder möchten das Haus besichtigen? Kontaktieren Sie uns: 04721-714240 Mein Team und ich bieten Ihnen Fachkompetenz und langjährige Erfahrung in allen Fragen rund um Immobilien. - Ihre Zufriedenheit liegt uns am Herzen!
Ich bin damit einverstanden, dass mir Karten von Google angezeigt werden. Es gelten die Datenschutzbedingungen von Google (https://policies.google.com/privacy).
Ich bin einverstanden